DURISCH + NOLLI ARCHITETTI
Architects: Pia Durisch, Aldo Nolli
Photos by: David Willen, Tonatiuh Ambrosetti
Typology: Educational building
Location: Gordola
Date: 2010
Masterplan
The new volumes fulfil the existing system and work as a grading element for it. The main building defines the professional training area and marks the limit towards the countryside; by elevating its volume, green land is maintained and new parking spaces are created. The circulation between units is simple and functional, all buildings work in synergy with the context, giving life to a new urban organism, the SSIC Campus.
Project
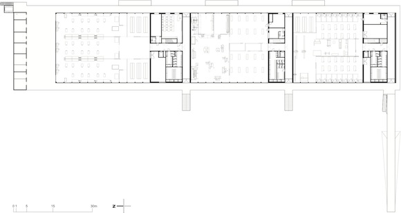
A single building, set at the edge of the plot, fulfils the require- ments of the project. The building is designed as a platform, while the space below hosts parking and storage spaces. The solution shows a remarkable flexibility, offering more outdoor covered spaces than originally requested. The volume containing labora- tories and teaching rooms appears as simple, flexible, and func- tional. An industrial building, where students can experience a real professional environment. Generous north-facing sheds guarantee perfect light and the introverted space offers ideal working conditions.
Structure
The platform, raised on a network of pillars, protects the building complex from floods. The plate has been designed as a concrete slab that allows any type of activity; while a reticular metal shed structure covers the whole building along 140 meters.
Material
The project is characterized by using the same material manu- factured in the centre. The platform is simple and rational in con- crete. On top of this rough structure lays a light metal structure, while corrugated inox sheets make the outer coating skin.

